绿色节能环保网 > 水处理 > 上海港仪阀门有限公司

上海港仪阀门有限公司

主营:电动调节阀、气动调节阀、减压阀、气动蝶阀、电动蝶阀、气动球阀、电动球阀、闸阀、止回阀、截止阀等

    供应商信息

    10

    站内搜索

    联系方式

    • 联系人:陈英雄先生
    • 电话:021-37566397
    • 手机:15821088512
    • 点击交流
    • Email:15821088512@126.com

    电动三通调节阀

    • 价格:100元/台
    • 供货总量:1000台
    • 最小起订:1台
    • 发货期限:2天
    • 所在地区:上海市奉贤区
    • 联 系 人:陈英雄先生

    15821088512

    打电话时请告知是在绿色节能环保网上看到的,谢谢!

    • 详细介绍

    ZDLQ、ZDLX型电子式电动三通合流、分流调节阀,采用圆筒型薄壁窗口式阀芯导向。配用3810L电子式系列、PSL 智能型直行程电动执行机构,接受420mA/DC15V/DC 信号驱动阀门启闭。其中三通合流调节阀用于将两种介质混合成第三种流体,或不同温度的两种流体,混合成同一温度的流体。三通分流阀将一路流体分成两路流体。

    本系列产品公称通径由DN25DN300(分流式)DN80DN300(合流式),公称压力有1.64.06.4MPa,适用流体温度由-60℃至450℃,控制信号为420mA/DC15V。配用不同的阀盖,可分为普通型和散热型两种。

    主要技术参数

    公称通径mm

    25

    32

    40

    50

    65

    80

    100

    125

    150

    200

    250

    300

    额定流量

    系数Kv

    合流

    8.5

    13

    21

    34

    53

    85

    135

    210

    340

    535

    800

    1280

    分流

     

     

     

     

     

    85

    135

    210

    340

    535

    800

    1280

    额定行程L

    16

    25

    40

    60

    100

    固有流量特性

    线性、等百分比

    工作温度(℃)

    普通型: 铸钢:-40250 铸不锈钢:-60250

    散热型:铸钢:-40450 铸不锈钢:-60450

    介质温度(℃)

    200以下(对合流阀而言)

    固有可调比R

    301

    公称压力(MPa

    1.64.06.4

    允许泄漏量

    硬密封:IV级、 软密封:VI

    作用方式

    信号故障时:全开、全关、自锁位

    信号范围

    15V420mA

    电源电压

    220V50Hz

    阀内组件:

    阀芯形式

    薄壁圆筒型阀芯

    流量特性

    抛物线性或线性特性

    材  质

    不锈钢、不锈钢堆焊司太莱、钛或耐腐蚀合金等

    阀体、阀盖

    HT200ZG230450ZG1Cr18Ni9Ti

       

    1Cr18Ni9Ti、司太莱合金堆焊

       

    聚四氟乙烯、柔性石墨、不锈钢波纹管

    推杆、衬套

    2Cr13

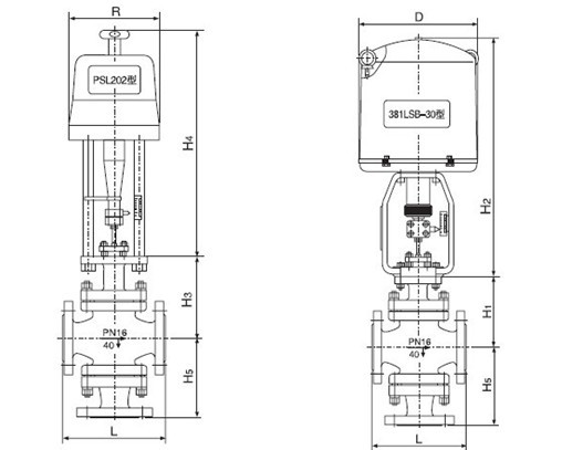
     外形参考尺寸

    公称通径

    25

    32

    40

    50

    65

    80

    100

    125

    150

    200

    L

    185

    200

    220

    250

    275

    300

    350

    410

    450

    550

    D

    225

    310

    R

    177

    226

    H1

    155

    175

    180

    200

    235

    250

    260

    330

    350

    420

    H2

    373

    495

    495

    495

    700

    700

    700

    725

    725

    725

    H3

    181

    195

    200

    220

    262

    277

    287

    357

    377

    447

    H4

    459

    459

    459

    459

    520

    520

    520

    570

    570

    570

    H5

    135

    145

    160

    170

    190

    200

    220

    280

    320

    380

    重量Kg

    13

    17

    19

    20

    38

    50

    60

    84

    87

    110

    型号编制

    ZDL               Q            16             C                      G             DN

    电子式            Q为合流型    公称压力       C为铸钢                中温          阀口径

    电动调节阀        X为分流型                   P为不锈钢304           常温省略

    留言咨询

    (如果想详细了解产品信息,请留言,我们将在第一时间与您联系!)
    信息标题 *
    公司名称:
    姓名: * 电话: *
    Q Q: Email:
    期望价格:
    内容: *
    验证码: *
     
    免责声明:以上信息由会员自行提供,内容的真实性、准确性和合法性由发布会员负责,绿色节能环保网对此不承担任何责任。绿色节能环保网不涉及用户间因交易而产生的法律关系及法律纠纷,纠纷由您自行协商解决。
    友情提醒:本网站仅作为用户寻找交易对象,就货物和服务的交易进行协商,以及获取各类与贸易相关的服务信息的平台。为避免产生购买风险,建议您在购买相关产品前务必确认供应商资质及产品质量。过低的价格、夸张的描述、私人银行账户等都有可能是虚假信息,请采购商谨慎对待,谨防欺诈,对于任何付款行为请您慎重抉择!如您遇到欺诈等不诚信行为,请您立即与绿色节能环保网联系,如查证属实,绿色节能环保网会对该企业商铺做注销处理,但绿色节能环保网不对您因此造成的损失承担责任!
    联系方式:chinajnhb@126.com是处理侵权投诉的专用邮箱,在您的合法权益收到侵害时,欢迎您向该邮箱发送邮件,我们会在3个工作日内给您答复,感谢您对绿色节能环保网的关注与支持!

    扫一扫手机旺铺

    客户服务热线

    021-37566397

    上海港仪阀门有限公司

    很高兴为您服务